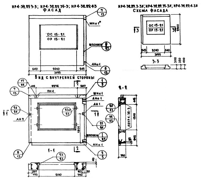
НР4-32.29.4-3л

Чертеж изделия:
Чертеж НР4-32.29.4-3л
Характеристики изделия:
ПараметрЗначение
Длина3195 мм
Ширина400 мм
Высота2900 мм
Масса3340 кг
Нормативный документСерия 1.132-1

НР4-32.29.3-4л   Наружная стеновая панель рядовая по Серии 1.132-1.